Категории
Кран шаровой полнопроходной 393 с фланцем для установки привода
Характеристики
Макс. температура (Т) °С.: до +80 °С
Мин. температура (Т) °С.: до -40 °С (исп. У), до -60 °С (исп. ХЛ)
Класс герметичности: Класс «А» ГОСТ 9544-2015
Срок службы: Не менее 40 лет.
Гарантийный срок: 3 года или не менее 10 000 циклов
Тип присоединения:
фланцевый/фланцевый
Рабочая среда:
Природный газ, сжиженный углеводородный газ и другие газообразные среды, неагрессивные для материалов деталей крана.
Модификации
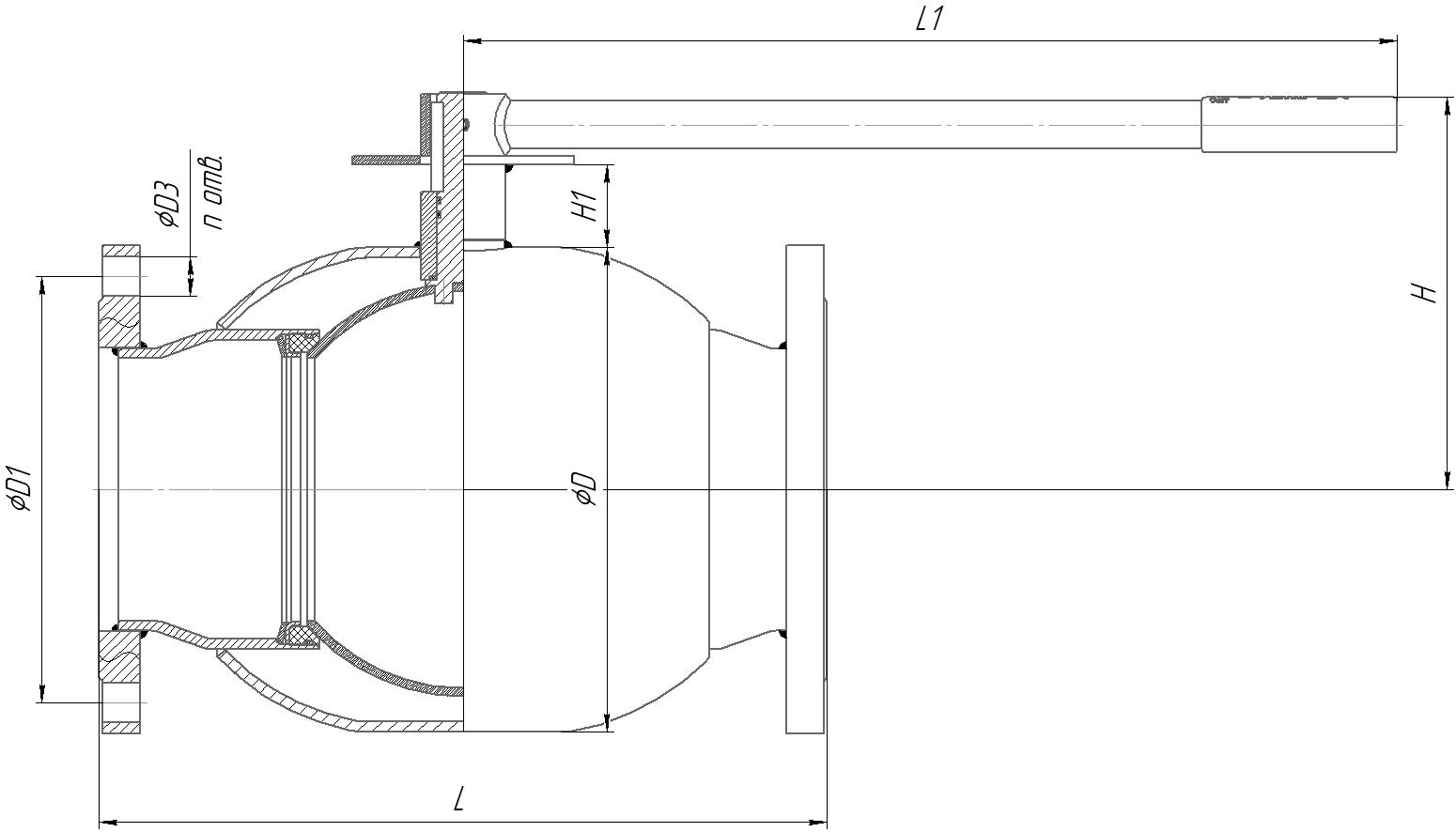
| Артикул | DN | PN | L | L1 | H | H1 | D | D1 | D2 | D3 | N OF HOLES | Вес | |
|---|---|---|---|---|---|---|---|---|---|---|---|---|---|
| 39320100 | 100 | 16 | 350 | 525 | 187 | 50 | 180 | 180 | 100 | 18 | 8 | 21,70 | |
| 39320125 | 125 | 16 | 380 | 525 | 203 | 48 | 219 | 210 | 125 | 18 | 8 | 33,68 | |
| 39320150 | 150 | 16 | 410 | 525 | 228 | 45 | 273 | 240 | 148 | 22 | 8 | 39,75 | |
| 39320200 | 200 | 16 | 530 | 1030 | 273 | 51 | 351 | 395 | 200 | 22 | 12 | 76,75 | |
| 39320250 | 250 | 16 | 750 | - | 414 | 101 | 426 | 355 | 240 | 26 | 12 | 145,00 | |
| 39320300 | 300 | 16 | 750 | - | 464 | 100 | 530 | 410 | 300 | 26 | 12 | 270,00 | |
| 39320400 | 400 | 16 | 990 | - | 560 | 103 | 630 | 525 | 390 | 30 | 16 | 615,00 |